Casa Morra

Storia e Progetto

Palazzo Cassano Ayerbo d’Aragona

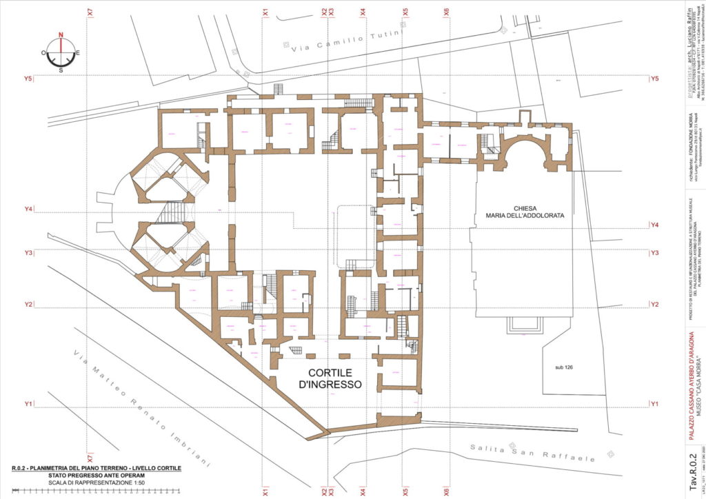
L’edificio rivela, ancora oggi, l’articolazione caratteristica della villa suburbana indicata dalla veduta di Lafrèry del 1566. Il nucleo originario, fedelmente raffigurato nella mappa anche se orientato in maniera diversa per garantirne una migliore rappresentazione all’interno della veduta, doveva essere costituito dall’ingresso con portale in piperno bugnato ubicato su una ripida salitina, dall’edificio che si sviluppava a settentrione del corpo d’ingresso e dai terreni agricoli circostanti, piantumati a orto e con alberi da frutta. Attraverso il portale si accedeva direttamente a un cortile poligonale, la cui forma irregolare era dettata dalla presenza del muro di contenimento, che costituiva il limite della proprietà lungo la strada, e dal corpo di fabbrica a forma di “L”.

Nella veduta di Alessandro Baratta di appena un secolo più tardi (1629), si nota come l’area avesse subito negli anni precedenti un intenso processo di urbanizzazione, con la conseguente scomparsa di gran parte degli orti e dei giardini, soprattutto nelle zone situate immediatamente a ridosso delle mura cittadine. La masseria – proprietà dei Duchi Carafa di Bruzzano – appare fortificata per la presenza di una torre merlata e rappresenta uno dei pochi elementi di continuità tra le vedute di Lafrèry e di Baratta relativamente a quest’area, che – come si è detto – appare completamente trasformata dalla massiccia urbanizzazione.

L’edificio veniva descritto da Celano alla fine del Seicento come uno dei «molti belli casini per delitie de nobili» e di proprietà sempre della famiglia Carafa di Bruzzano, mentre il Parrino, nel 1725, riportava la presenza di un casino di caccia nella zona di S. Efrem Nuovo, appartenente però alla famiglia Cassano Ayerbo d’Aragona. Tra la fine del XVII secolo e l’inizio del secolo successivo, quindi, dovette avvenire il passaggio di proprietà dell’edificio, che da casino di caccia venne anche trasformato in residenza nobiliare.

La prima notizia dell’ampliamento del palazzo risale al 1732, quando furono pagati a un tale D. Giuseppe Cito 39 ducati «per delli soffitti, di tele e loro finimento e pittura fatti nelle due stanze e gabinetto del quarto nuovo del palazzo del Principe di Cassano». Accanto al nucleo originario costituito dall’antica masseria cinquecentesca, veniva realizzato quindi, nel terzo decennio del Settecento, un ampio cortile rettangolare intorno al quale si sviluppava, sul lato meridionale, la fabbrica preesistente. I nuovi corpi di fabbrica erano organizzati a forma di “C” intorno al cortile, lasciando il quarto lato libero sul giardino. L’edificio era dotato anche di cisterne, se nel 1748 da questi ambienti veniva «tirata l’acqua» utile alla costruzione di «muri, lamie, archi per la formazione della nuova scala». Intorno alla metà del XVIII secolo, infatti, proprio sul lato lasciato aperto sul giardino, veniva aggiunto il monumentale corpo scala a pianta ottagonale, già documentato nella mappa del Duca di Noja, il cui rilievo topografico risale appunto al 1750. Lo scalone, a cinque rampe, è realizzato su volte a crociera rampanti in tufo, impostate sui pilastri centrali e sulle murature laterali in conci di tufo. La prima rampa centrale conduce a un pianerottolo a pianta composta, ottenuta da un rettangolo centrale e da due archi di cerchio laterali di raccordo, da cui partono, sui due lati, le coppie di rampe simmetriche (intervallate da un altro pianerottolo ad arco di cerchio), che conducono al piano superiore.

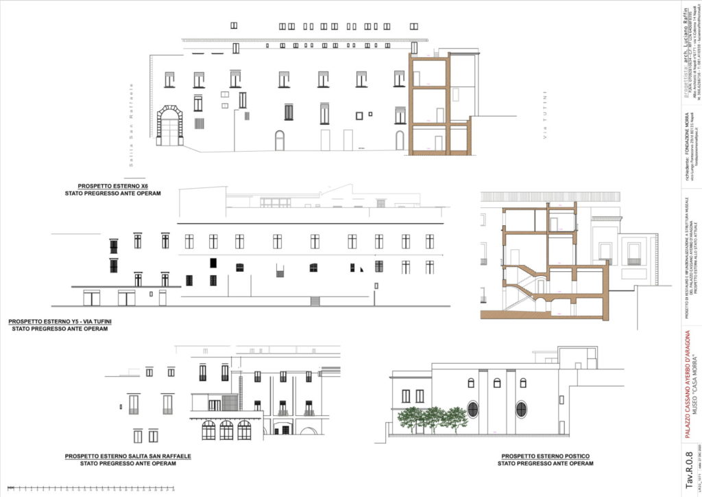
La scala, sulla scorta di confronti stilistici, è stata attribuita a Ferdinando Sanfelice, ideatore delle più belle scale aperte napoletane. In realtà, in questo caso, non si può parlare di una vera e propria “scala aperta” tradizionalmente intesa, visto che essa è inquadrata da ampie arcate a sesto ribassato in corrispondenza del cortile, che originariamente dovevano rendere lo spazio molto ben illuminato. Le arcate, tre per piano, sono inserite in una partitura di cornici e di lesene con capitelli tuscanici al piano terra, e ionici al piano superiore. Proprio tale canonica sovrapposizione di ordini ha indotto gli studiosi ad attribuire il progetto a un architetto educato alle nuove istanze culturali che si andavano diffondendo a Napoli dopo l’avvento di Carlo di Borbone, che può essere identificato appunto con il Sanfelice.

La struttura è completata da una composta decorazione a riquadri geometrici, dovuta all’intervento dell’ing. Gaetano Barba, responsabile dei restauri condotti nel 1785, che – stando ai documenti d’archivio – interessarono tanto la scala, che i corpi di fabbrica prospettanti sul cortile rettangolare.

Intorno alla metà dell’Ottocento, la vedova del Principe di Cassano d’Aragona vendeva l’intera proprietà – villa, giardino e tenuta – alla nobile monaca terziaria Maria Teresa de Conciliis, tanto devota alla Madonna dell’Addolorata, da stilare, nel 1859, un testamento nel quale manifestava la volontà che, alla sua morte, «di questo palazzo se ne faccia un monistero di donne delle serve di Maria».

La congregazione delle Serve di Maria Addolorata –  fondata nel 1874 e aggregata nel 1880 all’Ordine dei Serviti, della quale faceva appunto parte Suor Teresa de Conciliis – probabilmente risiedeva all’interno del palazzo già dall’epoca della morte della monaca (avvenuta nel 1863), e collaborò attivamente alla costruzione della chiesa dell’Addolorata. L’edificio religioso – realizzato nell’area adiacente al palazzo originariamente destinata a giardino – fu sicuramente costruito prima del 1880, anno di pubblicazione della Pianta del Comune di Napoli, nella quale appunto è già rappresentata la chiesa.

Nel 1906, le suore dell’Addolorata acquistano l’intera proprietà e appena un ventennio più tardi, tenendo per sé il palazzo e la chiesa, vendettero i terreni alla Cooperativa “Case Impiegati dello Stato”, che tra il 1925 e il 1930 vi costruì il Rione Materdei.

Claudia Rusciano

Delibera Comune di Napoli